ST. JOSEPH CONVENT

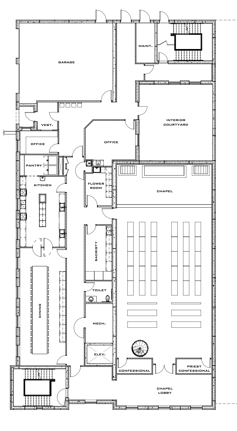
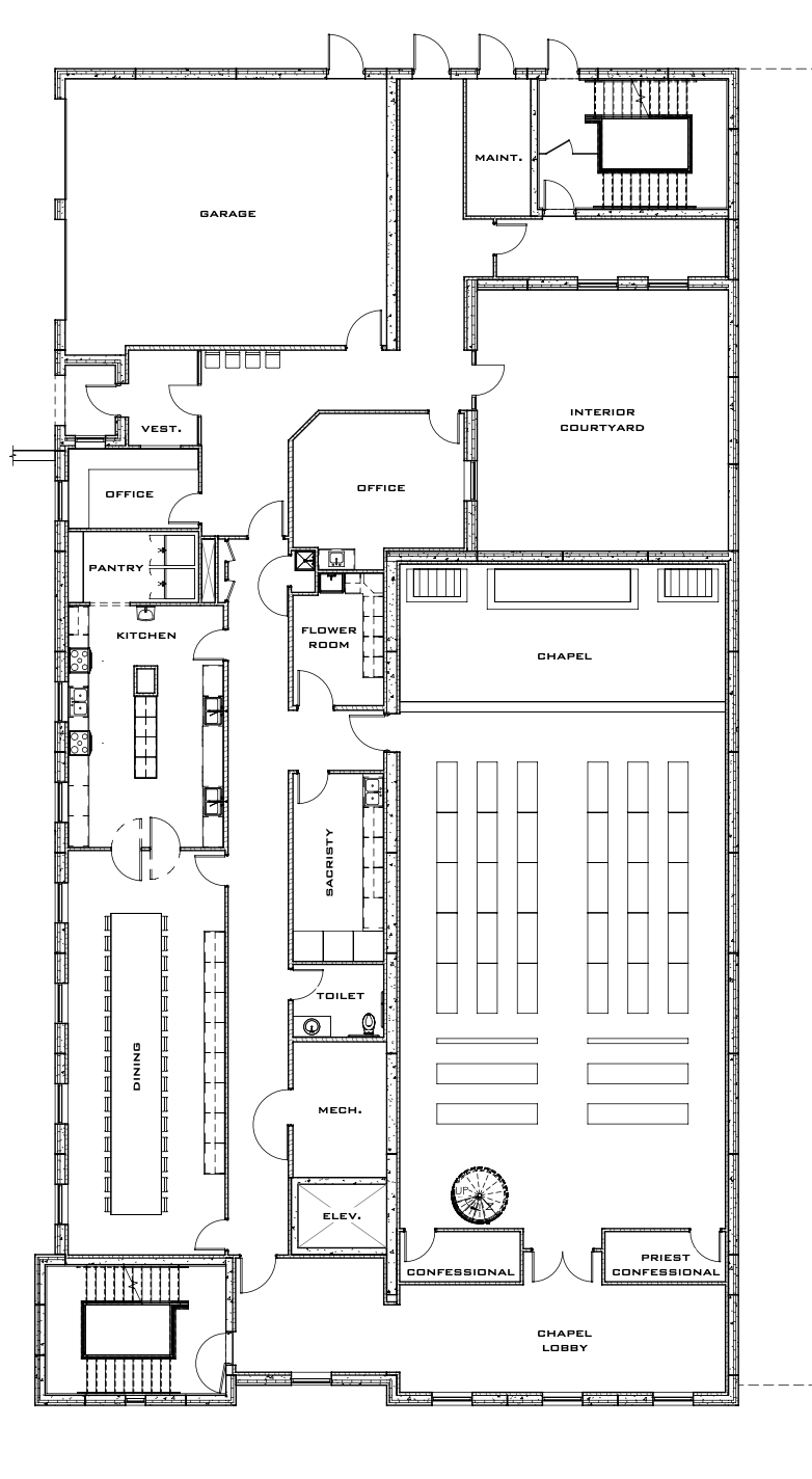
The Home for the Sisters Includes:

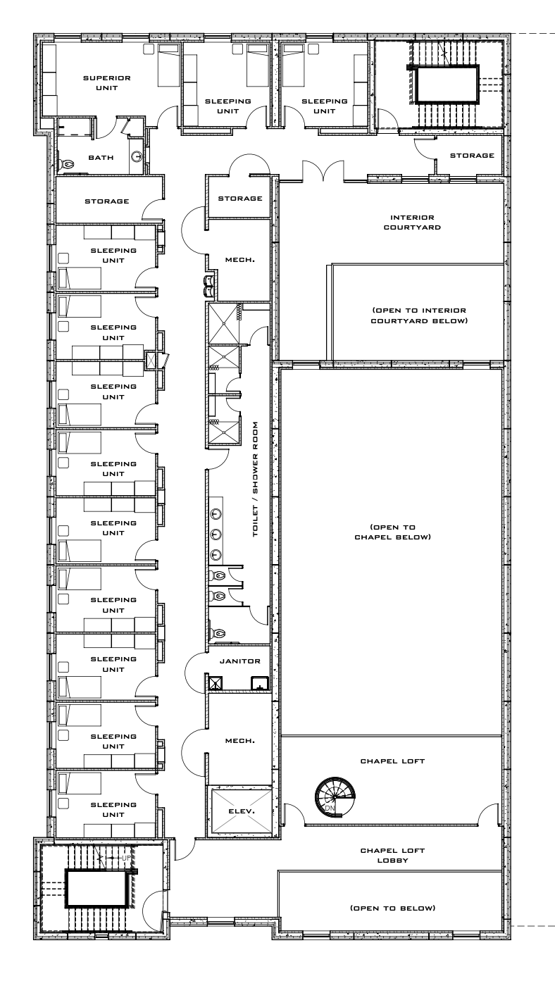
  • 36 Bedrooms 

  • A large chapel for the daily private use of the Sisters and visitors

  • A kitchen, dining room, and offices for day to day administrative needs

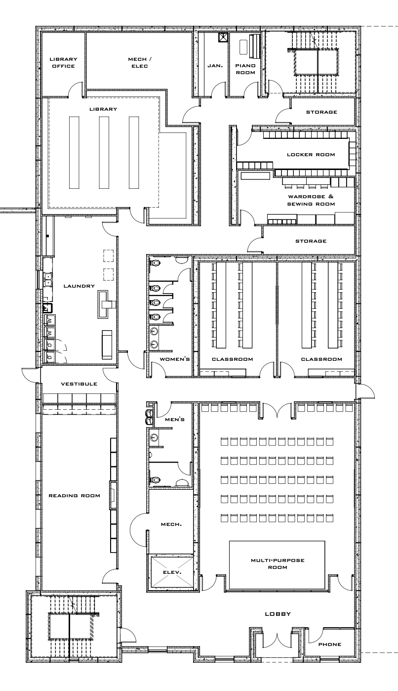
  • Space for the teacher training of the Sisters

  • An academic library for the whole formation of the Sisters

Why a Castle?

Why Choose Concrete?

Concrete at its best can resemble the limestone castles and universities of Europe. The St. Mary Sisters are educators and followers of an 800 year-old way of life making it fitting for them to choose their design from antiquity.

Advantages of Concrete:

Assembled in a few days

Economic materials

Lower heating and cooling costs

Minimal maintenance required

Durable structure

Sound-proof

Fire-proof

Great Look

Taracon PreCast Walls

The St. Mary Sisters are eager to get a larger convent because more women will join their ranks in service of educating the young starting in North Dakota!

What are Precast Walls?


Below is a sample of a precast exterior wall of the St. Joseph Convent. Precast walls are made by pouring concrete into large molds   offsite. After all the pieces are made, they are brought in and assembled onsite.